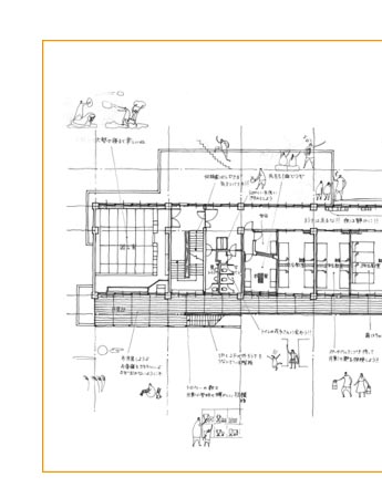
>次ページへ >PDF版はこちらから
  >篠原先生×片山先生インタビュー
プロジェクト1/8 プロジェクト2/8 プロジェクト3/8 インタビュー4/8
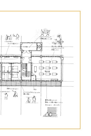
プロジェクト5/8 プロジェクト6/8 プロジェクト7/8 プロジェクト8/8